新作|BMW重庆永川4S体验中心
New Work | BMW Chongqing Yongchuan 4S Experience Center

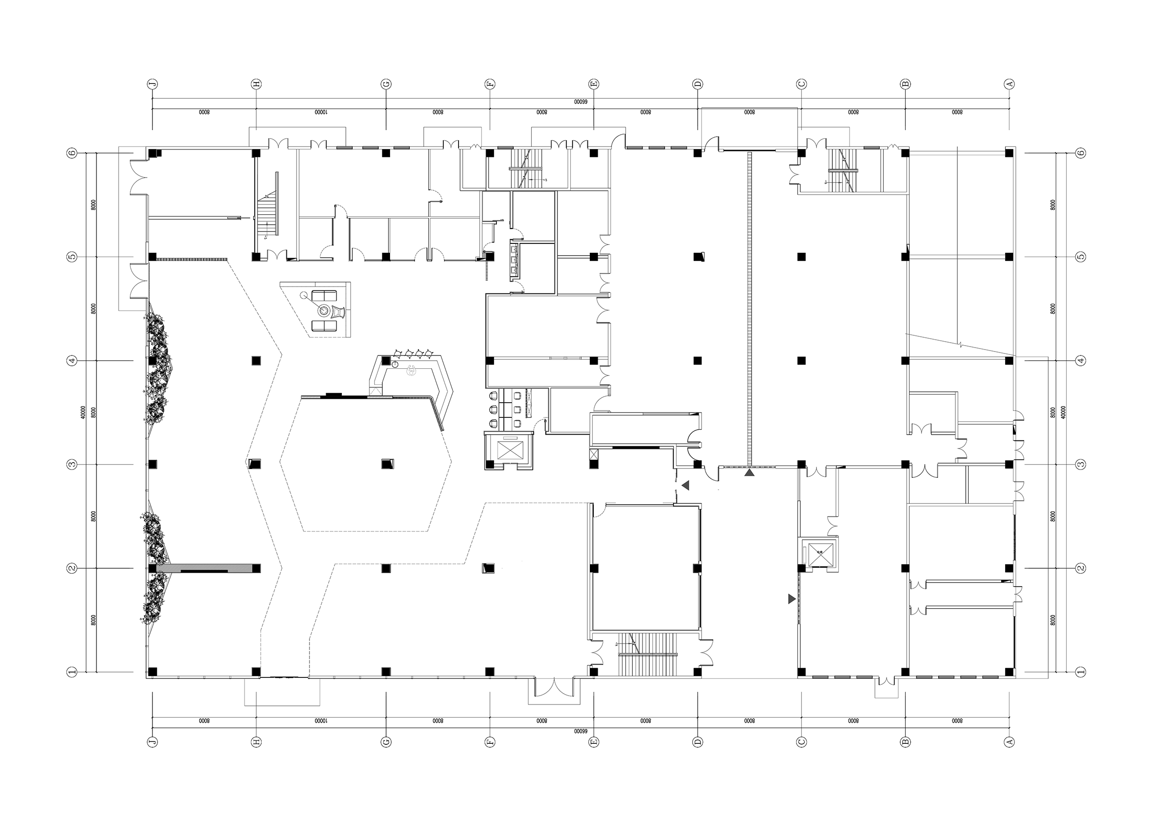
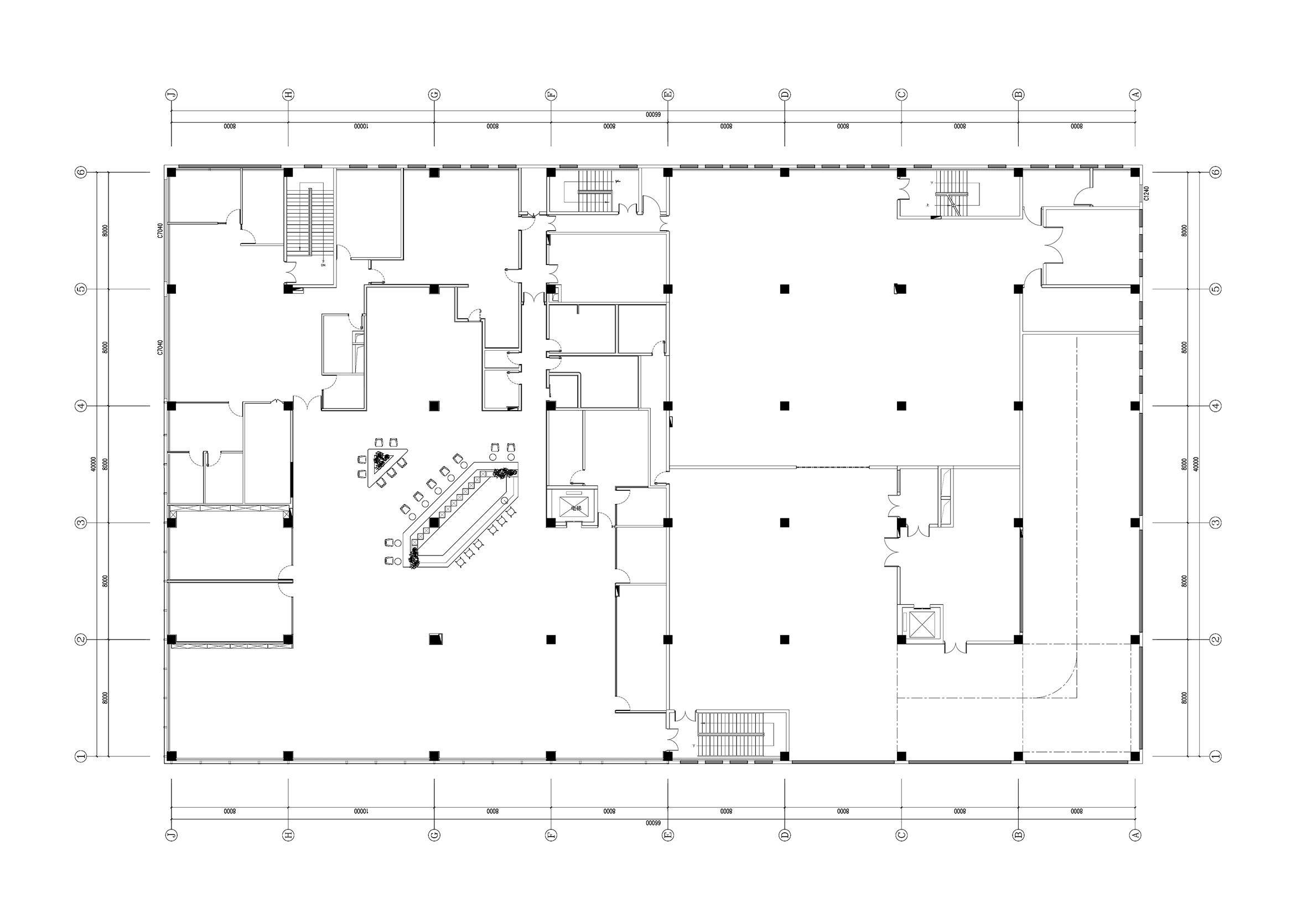
项目地块位于重庆永川,总占地面积5824平米。项目场地方正,方案考量建筑轮廓简洁利落,亦将屋面绿植作为设计的一部分,以回应绿色可持续的品牌理念。一层规划为展示区、接待区、办公及预检区等,二层规划为售后休闲区、保养维修区、办公区、客餐区、维修区等组合。因此A+S朱海博设计团队将「轻量化、模块化、可持续」作为此次方案的总指导原则,用纯粹简单的设计语言,传达空间及动线的流畅体验。
The project plot is located in Yongchuan,Chongqing, with a total floor area of 5,824 square meters. The site is square in shape. The design scheme considers the architectural outline to be simple and neat, and also takes the roof greenery as part of the design to respond to the brand concept of green sustainability. The first floor is planned as a display area, reception area, office area, and pre-inspection area, etc., while the second floor is planned as a combination of after-sales leisure area, maintenance and repair area, office area, customer dining area, repair area, etc. Therefore, the design team of A+S Zhu Haibo takes "lightweight, modular, and sustainable" as the overall guiding principles of this scheme, using pure and simple design language to convey the smooth experience of space and circulation.


▼ 概念:
Concept:
以BMW自研新世代操作系统X为灵感,A+S朱海博设计团队结合重庆永川竹海的在地化设计语言,方案重点在于重构「轻量化叙事」回应项目的品牌系统与在地文化脉络。设计中避开具象的竹符号堆砌,转而探索其材料特性与空间逻辑的本质关联。
Inspired by BMW's self-developed new-generation operating system X, the A+S Zhu Haibo design team combines the localized design language of Yongchuan Bamboo Sea in Chongqing. The scheme focuses on reconstructing a "lightweight narrative" to respond to the project's brand system and local cultural context. The design avoids the stacking of literal bamboo symbols, instead exploring the essential connection between its material properties and spatial logic.



▼ 建筑:
Architecture:
建筑表皮以半通透编织金属网单元为核心,幕墙主形象叠加点阵屏动态立面,随日夜切换,在不同光照下、不同时间节点,金属网会呈现完全不同的色彩质感和肌理,这是项目落地后无意间发现的一个惊喜。尤其夜晚浮现的光影矩阵,以扁平化的设计逻辑体现「刚」与「柔」之间的视觉张力。
The architectural facade is centered on semi-transparent woven metal mesh units, with the main curtain wall integrated with a dynamic dot-matrix screen facade. As day transitions to night, the metal mesh exhibits entirely different color tones, textures, and surface nuances under varying lighting conditions—a serendipitous discovery that emerged unexpectedly after the project's completion. The light-shadow matrix that materializes at night, in particular, embodies the visual tension between "rigidity" and "softness" through a flat design logic, creating a striking interplay of form and light.



▼ 室内:
Interior:
为了满足客户体验中的视觉层次和心理期待,设计团队希望在平面布局上打破传统方正空间格局和呆板的平面感,强化空间的「纵深感」和「可达性」,因此在平面上同样以“X”型多面体切割视觉符号拉长动线,通过几何棱面的交错组合,构建出具有数学规律的立体空间形态。
To meet the visual hierarchy and psychological expectations in customer experience, the design team aimed to break the traditional square spatial pattern and rigid planar feel in the layout, enhancing the "depth" and "accessibility" of the space. Thus, the floor plan also uses the "X"-shaped polyhedral cutting visual symbol to elongate the circulation route. Through the interlaced combination of geometric edges, a three-dimensional spatial form with mathematical regularity is constructed, creating a dynamic interplay of lines and volumes.






在立面上也同样用此纯粹简单的模块化单元,形成贯穿空间的线索,对应天花裂开X形几何光槽与地面的材质分缝,指引了人的行为轨迹,强化了空间的秩序感。立面隔断同时也是可拆卸的空间主板,以预制构件为核心组件,实现空间灵活分隔,减少视觉遮挡,强化展品主体地位,亦适应未来随新品、活动节点演变的活态场景。
The same pure and simple modular units are applied to the interior facades, creating a visual thread that weaves through the space. These modules align with the X-shaped geometric light troughs in the ceiling and material joints on the floor, guiding visitors' movement and reinforcing spatial order. The facade partitions double as removable structural panels, featuring prefabricated components as their core. This design enables flexible spatial reconfiguration, minimizes visual obstructions, highlights product displays, and accommodates future adaptations to new product launches and dynamic event scenarios.




端景的板材以密缝工艺和色块切割,拼接形成X型立面,赋予蓝、粉、米黄等低饱和色彩,既活跃空间又不喧宾夺主,以一种生活向往的情绪氛围模糊“展示”与“体验”的边界。
At the terminus of the spatial sequence, the facade panels are meticulously fabricated using precision tight-joint craftsmanship and geometric color-block segmentation. These components are artfully assembled to form an X-shaped elevation, which is adorned with a palette of low-saturation hues, including shades of blue, pink, and beige. This design approach effectively animates the space while maintaining a harmonious balance that ensures the primary exhibits remain the focal point. By cultivating an aspirational ambiance that evokes a sense of yearning for an elevated lifestyle, the design seamlessly blurs the boundaries between "display" and "experience," thereby creating a holistic and immersive environment.



▼ 项目信息:
项目名称:BMW宝马重庆永川4S中心
项目地址:重庆永川汽博路
建筑设计:A+S朱海博建筑设计事务所
事务所网站:archihope.com
设计团队:朱海博、方洁、许畅
总占地面积:5824㎡
主要材料:铝板、冲孔铝板、low-E双层中空玻璃、金属网、点阵屏等
完工时间:2025年3月18日
项目摄影:吴鉴泉
Project information:
Project Name: BMW Chongqing Yongchuan 4S Center
Project address: Qibo Road, Yongchuan, Chongqing
Design Company: A+S ARCHIHOPE Ltd.
Firm website: archihope.com
Design team: Zhu Haibo, Fang Jie, Xu Chang
Total floor area: 5824 square meters
Main Materials: Aluminum plate, perforated aluminum plate, Low-E Hollow Glass, metal mesh, lattice screen, etc
Completion date: March 18, 2025
Project Photographer: Vincent Wu
新作|BMW重庆永川4S体验中心
New Work | BMW Chongqing Yongchuan 4S Experience Center

项目地块位于重庆永川,总占地面积5824平米。项目场地方正,方案考量建筑轮廓简洁利落,亦将屋面绿植作为设计的一部分,以回应绿色可持续的品牌理念。一层规划为展示区、接待区、办公及预检区等,二层规划为售后休闲区、保养维修区、办公区、客餐区、维修区等组合。因此A+S朱海博设计团队将「轻量化、模块化、可持续」作为此次方案的总指导原则,用纯粹简单的设计语言,传达空间及动线的流畅体验。
The project plot is located in Yongchuan,Chongqing, with a total floor area of 5,824 square meters. The site is square in shape. The design scheme considers the architectural outline to be simple and neat, and also takes the roof greenery as part of the design to respond to the brand concept of green sustainability. The first floor is planned as a display area, reception area, office area, and pre-inspection area, etc., while the second floor is planned as a combination of after-sales leisure area, maintenance and repair area, office area, customer dining area, repair area, etc. Therefore, the design team of A+S Zhu Haibo takes "lightweight, modular, and sustainable" as the overall guiding principles of this scheme, using pure and simple design language to convey the smooth experience of space and circulation.


▼ 概念:
Concept:
以BMW自研新世代操作系统X为灵感,A+S朱海博设计团队结合重庆永川竹海的在地化设计语言,方案重点在于重构「轻量化叙事」回应项目的品牌系统与在地文化脉络。设计中避开具象的竹符号堆砌,转而探索其材料特性与空间逻辑的本质关联。
Inspired by BMW's self-developed new-generation operating system X, the A+S Zhu Haibo design team combines the localized design language of Yongchuan Bamboo Sea in Chongqing. The scheme focuses on reconstructing a "lightweight narrative" to respond to the project's brand system and local cultural context. The design avoids the stacking of literal bamboo symbols, instead exploring the essential connection between its material properties and spatial logic.



▼ 建筑:
Architecture:
建筑表皮以半通透编织金属网单元为核心,幕墙主形象叠加点阵屏动态立面,随日夜切换,在不同光照下、不同时间节点,金属网会呈现完全不同的色彩质感和肌理,这是项目落地后无意间发现的一个惊喜。尤其夜晚浮现的光影矩阵,以扁平化的设计逻辑体现「刚」与「柔」之间的视觉张力。
The architectural facade is centered on semi-transparent woven metal mesh units, with the main curtain wall integrated with a dynamic dot-matrix screen facade. As day transitions to night, the metal mesh exhibits entirely different color tones, textures, and surface nuances under varying lighting conditions—a serendipitous discovery that emerged unexpectedly after the project's completion. The light-shadow matrix that materializes at night, in particular, embodies the visual tension between "rigidity" and "softness" through a flat design logic, creating a striking interplay of form and light.



▼ 室内:
Interior:
为了满足客户体验中的视觉层次和心理期待,设计团队希望在平面布局上打破传统方正空间格局和呆板的平面感,强化空间的「纵深感」和「可达性」,因此在平面上同样以“X”型多面体切割视觉符号拉长动线,通过几何棱面的交错组合,构建出具有数学规律的立体空间形态。
To meet the visual hierarchy and psychological expectations in customer experience, the design team aimed to break the traditional square spatial pattern and rigid planar feel in the layout, enhancing the "depth" and "accessibility" of the space. Thus, the floor plan also uses the "X"-shaped polyhedral cutting visual symbol to elongate the circulation route. Through the interlaced combination of geometric edges, a three-dimensional spatial form with mathematical regularity is constructed, creating a dynamic interplay of lines and volumes.






在立面上也同样用此纯粹简单的模块化单元,形成贯穿空间的线索,对应天花裂开X形几何光槽与地面的材质分缝,指引了人的行为轨迹,强化了空间的秩序感。立面隔断同时也是可拆卸的空间主板,以预制构件为核心组件,实现空间灵活分隔,减少视觉遮挡,强化展品主体地位,亦适应未来随新品、活动节点演变的活态场景。
The same pure and simple modular units are applied to the interior facades, creating a visual thread that weaves through the space. These modules align with the X-shaped geometric light troughs in the ceiling and material joints on the floor, guiding visitors' movement and reinforcing spatial order. The facade partitions double as removable structural panels, featuring prefabricated components as their core. This design enables flexible spatial reconfiguration, minimizes visual obstructions, highlights product displays, and accommodates future adaptations to new product launches and dynamic event scenarios.




端景的板材以密缝工艺和色块切割,拼接形成X型立面,赋予蓝、粉、米黄等低饱和色彩,既活跃空间又不喧宾夺主,以一种生活向往的情绪氛围模糊“展示”与“体验”的边界。
At the terminus of the spatial sequence, the facade panels are meticulously fabricated using precision tight-joint craftsmanship and geometric color-block segmentation. These components are artfully assembled to form an X-shaped elevation, which is adorned with a palette of low-saturation hues, including shades of blue, pink, and beige. This design approach effectively animates the space while maintaining a harmonious balance that ensures the primary exhibits remain the focal point. By cultivating an aspirational ambiance that evokes a sense of yearning for an elevated lifestyle, the design seamlessly blurs the boundaries between "display" and "experience," thereby creating a holistic and immersive environment.



▼ 项目信息:
项目名称:BMW宝马重庆永川4S中心
项目地址:重庆永川汽博路
建筑设计:A+S朱海博建筑设计事务所
事务所网站:archihope.com
设计团队:朱海博、方洁、许畅
总占地面积:5824㎡
主要材料:铝板、冲孔铝板、low-E双层中空玻璃、金属网、点阵屏等
完工时间:2025年3月18日
项目摄影:吴鉴泉
Project information:
Project Name: BMW Chongqing Yongchuan 4S Center
Project address: Qibo Road, Yongchuan, Chongqing
Design Company: A+S ARCHIHOPE Ltd.
Firm website: archihope.com
Design team: Zhu Haibo, Fang Jie, Xu Chang
Total floor area: 5824 square meters
Main Materials: Aluminum plate, perforated aluminum plate, Low-E Hollow Glass, metal mesh, lattice screen, etc
Completion date: March 18, 2025
Project Photographer: Vincent Wu

